Denah Rumah Lengkap Dengan Gambarnya - 13 Inspirasi Denah Rumah 3 Kamar Rumah Com

Denah Rumah Lengkap Dengan Gambarnya - 13 Inspirasi Denah Rumah 3 Kamar Rumah Com. Pernyataan yang tidak salah sebenarnya. Rumah merupakan sebuah tempat tinggal yang digunakan untuk tempat berlindung dari teriknya sinar matahari dan hujan. Rencana untuk 2 lantai : Simak 12 desain rumah desa terbaik dan sederhan yang tidak selamanya desain rumah harus modern dan minimalis karena anda juga bisa membuat desain rumah agar terlihat sederhana dan tampak seperti. Sehingga, kamu tidak kebingungan dalam menentukan rumah impianmu.

R klas 2 (6 bed), r klas 1 (3 bed) jangan lupa wc dan. 1 r ugd, 2 r praktek, 2 kamar operasi (4x3m masing); Gambar kerja lengkap maksudnya adalah gambar yang mencukupi untuk digunakan sebagai acuan pembangunan sebuah rumah minimalis, baik sebagai acuan konstruksinya maupun perhitungan kebutuhan bahan dan biaya bangunan. Sisa lahan untuk taman dan carport. Siap melayani jasa desain rumah dari rumah sederhana, rumah mewah, model klasik, minimalis jasa desain meliputi gambar lengkap denah, tampak dari semua sisi gambar 2d/3d file gambar pdf dan videonya dikirim lewat wa/email dan juga gambar jadi beserta file2nya disimpan.

5 Denah Rumah 2 Lantai Unik Untuk Keluarga Baru
5 Denah Rumah 2 Lantai Unik Untuk Keluarga Baru from i0.wp.com
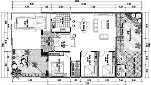
Denah rumah sederhana minimalis 8×12. Jadi desain rumah satu ini memiliki 4 kamar tidur dengan pembagian 1 kamar tidur utama dan 2 kamar tidur untuk anak dan 1 kamar tidur untuk asisten rumah tangga. Dengan 1 kamar tidur utama, 1 kamar tidur, dan 1 kamar tidur anak / pembantu. Desain rumah lengkap dengan ukurannya pada denah diatas saya sertakan lengkap dengan ukuranya untuk membatu sahabat desain rumah minimalis merencanakan rencana pondasi dan pembagian ruang nya, terlihat di gambar denahnya ruang tamu yang cukup luas dan terdapat 3 kamar tidur yang terdiri dari 1 kamar utama dan 2 kamar anak, terdapat juga area makan yang menghadap taman di belakang sekaligus bersampingan dengan dapur. Desain rumah minimalis type 45 lengkap dengan denah. Dengan luas bangunan sebesar ini tentu sangat mudah bagi pemilik rumah untuk menentukan jumlah ruangan tanpa harus terkendala minimnya luas rumah. Rab rumah type 36 lengkap dengan gambarnya 2021 dapatkan ragam kumpulan ide untuk rab rumah type 36 lengkap dengan gambarnya 2021 dari berbagai model melalui situs designarsitektur.com salah satunya bisa anda dapatkan dibawah ini: Bersamaan dengan ini mereka juga membuat tambalan kecil taman untuk memberi sentuhan alami pada pintu masuk.

31+ denah rumah minimalis dan gambarnya, info baru!

Banyak yang mengira bahwa merancang sebuah rumah idaman haruslah mewah dan ideal sesuai dengan keinginan. Nah ini dapat lagi inspirasi desain gambarnya : Dengan luas bangunan sebesar ini tentu sangat mudah bagi pemilik rumah untuk menentukan jumlah ruangan tanpa harus terkendala minimnya luas rumah. Yuk, simak artikelnya dibawah ini! Jadi desain rumah satu ini memiliki 4 kamar tidur dengan pembagian 1 kamar tidur utama dan 2 kamar tidur untuk anak dan 1 kamar tidur untuk asisten rumah tangga. Sehingga rumah yang akan anda bangun sesuai dengan yang anda harapkan. Sehingga, kamu tidak kebingungan dalam menentukan rumah impianmu. Lantai 2 kalau bisa r klas 3 (10 bed/tempat tidur); Desain rumah type 45/60, jasa arsitek rumah, jasa bangun rumah, jasa desain interior rumah, jasa desain rumah minimalis 2018, jasa desain rumah minimalis terbaru 2018, jasa gambar rumah, jasa kontraktor rumah, jasa renovasi rumah, type 45/70, type 45/80, type 45/90 Tentu saja rumah yang apik dan nyaman adalah dambaan setiap orang, dan rumah minimalis adalah salah satu yang memenuhi kriteria tersebut. Desain rumah lengkap dengan ukurannya pada denah diatas saya sertakan lengkap dengan ukuranya untuk membatu sahabat desain rumah minimalis merencanakan rencana pondasi dan pembagian ruang nya, terlihat di gambar denahnya ruang tamu yang cukup luas dan terdapat 3 kamar tidur yang terdiri dari 1 kamar utama dan 2 kamar anak, terdapat juga area makan yang menghadap taman di belakang sekaligus bersampingan dengan dapur. Rumah type 100 adalah rumah dengan luas bangunan 100 meter persegi dengan dimensi 10 x 10 meter atau 5 x 20 meter atau lainnya. Mempunyai rumah sendiri tentunya menjadi sebuah impian bagi setiap orang yang sudah berkeluarga.

Saya ingin konsultasi untuk desain rumah sakit sederhana: Untuk ukuran rumah yang melebihi lahan yang dimiliki. Sebelum rumah anda dibangun tentu anda haru merencanakan denahnya terlebih dahulu. 1 ruang tamu, 1 ruang keluarga dan ruang makan, 1 toilet dan 1 taman belakang. Desain rumah type 60 model minimalis, sederhana, modern terbaru

17 Gambar Sketsa Denah Rumah Sederhana Terlengkap 2020 Rumahpedia
17 Gambar Sketsa Denah Rumah Sederhana Terlengkap 2020 Rumahpedia from rumahpedia.info
Sehingga rumah yang akan anda bangun sesuai dengan yang anda harapkan. Dan biasanya orang yang menempati kontrakan ini juga penghuni yang memiliki mobil. Sedangkan di lantai kedua ada 3 kamar tidur dan dua kamar mandi. 31+ denah rumah minimalis dan gambarnya, info baru! Keterangan dalam denah ini menggunakan bahasa luar negeri, tapi anda bisa faham dengan melihat gambarnya 3. Desain rumah minimalis type 45 lengkap dengan denah. Rumah type 100 adalah rumah dengan luas bangunan 100 meter persegi dengan dimensi 10 x 10 meter atau 5 x 20 meter atau lainnya. Rumah modern lengkap dengan penjelasannya dan gambarnya.

Denah rumah sederhana minimalis 8×12.

Keterangan dalam denah ini menggunakan bahasa luar negeri, tapi anda bisa faham dengan melihat gambarnya 3. 31+ denah rumah minimalis dan gambarnya, info baru! Gambar denah rumah type 100 lengkap dengan potongan. Desain rumah minimalis type 45 lengkap dengan denah, ,desain rumah type 45/60, type 45/70, type 45/80, type 45/90, jasa desain rumah minimalis 2018, jasa. Desain rumah lengkap dengan ukurannya pada denah diatas saya sertakan lengkap dengan ukuranya untuk membatu sahabat desain rumah minimalis merencanakan rencana pondasi dan pembagian ruang nya, terlihat di gambar denahnya ruang tamu yang cukup luas dan terdapat 3 kamar tidur yang terdiri dari 1 kamar utama dan 2 kamar anak, terdapat juga area makan yang menghadap taman di belakang sekaligus bersampingan dengan dapur. Perancang telah memilih untuk dinding fokal bermotif sehingga terlihat cantik. Desain rumah minimalis type 45 lengkap dengan denah. Rumah yang akan saya sajikan nanti ini merupakan termasuk juga desain rumah minimalis dengan berbagai type. Permintaannya adalah carport, 2 kamar tidur, r.tamu, r.keluarga, dapur, r.cuci, taman dpn & blkg. Secara visual, denah tempat tinggal yang berukuran besar juga memberikan sentuhan yang lebih berkelas, apalagi kalau garis antar denah rumah minimalis beserta gambarnya diusahakan agar tidak terlihat. Denah rumah 3 kamar minimalis Sisa lahan untuk taman dan carport. Banyak yang mengira bahwa merancang sebuah rumah idaman haruslah mewah dan ideal sesuai dengan keinginan.

Bersamaan dengan ini mereka juga membuat tambalan kecil taman untuk memberi sentuhan alami pada pintu masuk. Gambar denah rumah type 100 lengkap dengan potongan. Kalau kamu punya tanah yang melebar, desain di atas bisa kamu aplikasikan. Rumah yang saya sajikan adalah salah satu rumah yang saya ambil gambarnya untuk dijadikan sebagai refrensi dalam artikel ini. Fasad eksterior ini adalah tampilan lengkap eksterior fasad rumah.

8 Inspirasi Gambar Denah Rumah Minimalis Modern Type 45
8 Inspirasi Gambar Denah Rumah Minimalis Modern Type 45 from cdn.popbela.com
Denah rumah juga cocok untuk pecinta minimalis, desain seperti ini memberikan sentuhan yang lebih modern, terang dan indah dan nyaman. Desain rumah type 60 model minimalis, sederhana, modern terbaru Mohon dibuatkan desainya luas lahan yang dibuat : Denah rumah ukuran 9 x 12 m. Dan biasanya orang yang menempati kontrakan ini juga penghuni yang memiliki mobil. Banyak yang mengira bahwa merancang sebuah rumah idaman haruslah mewah dan ideal sesuai dengan keinginan. Rumah merupakan sebuah tempat tinggal yang digunakan untuk tempat berlindung dari teriknya sinar matahari dan hujan. Denah rumah dengan 3 kamar tidur ini cocok untuk kamu yang memiliki lahan yang luas.

Berikut contoh gambar denah rumah sederhana lengkap terbaru sebagai inspirasi anda dalam membuat denah rumah sederhana ataupun rumah minimalis yang tepat berbagai type.

Denah rencana rumah 1 lantai (rumah tumbuh direncanakan 2lt) diatas lahan seluas 96 m2 (8 m x 12 m). Gambar denah rumah sederhana lengkap dengan ukuran. Rumah type 100 adalah rumah dengan luas bangunan 100 meter persegi dengan dimensi 10 x 10 meter atau 5 x 20 meter atau lainnya. Rumah modern 2020 lengkap dengan gambar dan penjelasannya. Sisa lahan untuk taman dan carport. Nah ini dapat lagi inspirasi desain gambarnya : Contoh denah rumah 2 lantai lengkap dengan gambarnya 1. Gambar denah rumah type 100 lengkap dengan potongan. Simak 12 desain rumah desa terbaik dan sederhan yang tidak selamanya desain rumah harus modern dan minimalis karena anda juga bisa membuat desain rumah agar terlihat sederhana dan tampak seperti. Untuk sapiteng diletakkan dibawah taman depan. Kalau kamu punya tanah yang melebar, desain di atas bisa kamu aplikasikan. Keterangan dalam denah ini menggunakan bahasa luar negeri, tapi anda bisa faham dengan melihat gambarnya 3. Dengan luas bangunan sebesar ini tentu sangat mudah bagi pemilik rumah untuk menentukan jumlah ruangan tanpa harus terkendala minimnya luas rumah.